8 (800) 775-71-93

Для районов крайнего Севера

Для районов крайнего Севера

Преимущества

Автоматизация

Управление технологическими процессами по заданной программе

Любая производительность

Производство очистной системы под конкретные параметры

SMS-оповещение

Уведомления о нештатных ситуациях в реальном времени

Морозоустойчивость

Стабильная очистка при экстремально низких температурах до –60 °C

Масштабируемость

Поэтапное увеличение производительности при росте количества пользователей

Подогрев стоков

Ускорение процессов биологической очистки за счет оптимальной температуры

Описание

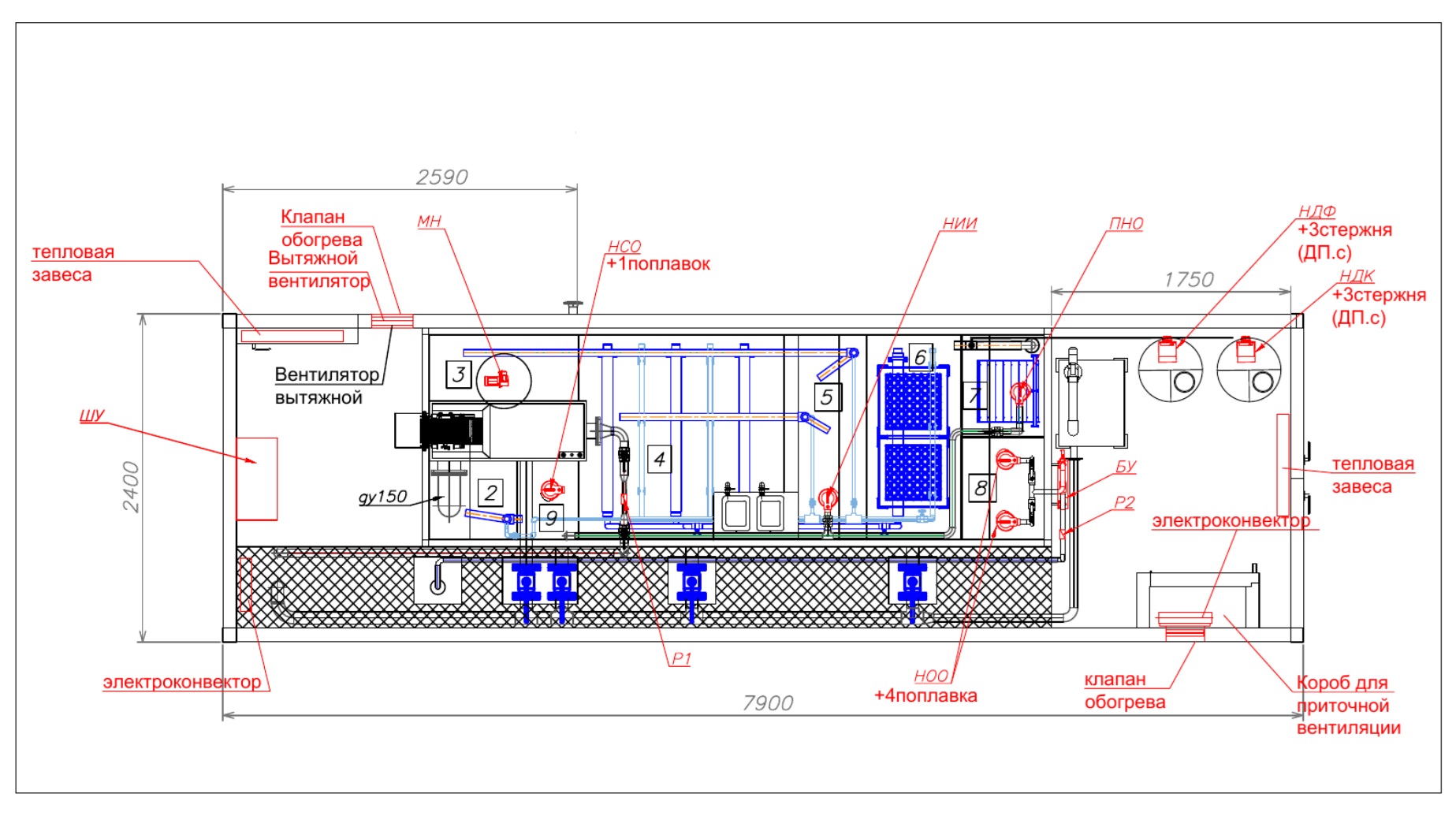
Станции «ТВЕРЬ-С» – блочно-модульные станции очистки хозяйственно-бытовых и близких к ним по составу стоков,  применяются на Крайнем Севере в отдаленных населенных пунктах, вахтовых поселках, военных частях и полярных поселениях.

Установка предназначена для приема и очистки хозяйственно-бытовых и близких к ним по составу сточных вод. 

Установка «ТВЕРЬ-С» состоит из одного блок-контейнера, в котором размещена технологическая емкость, а так же входная часть, технологическое, электротехническое и отопительно-вентиляционное оборудование. Конструкция блок-контейнера разработана для условий Крайнего севера и представляет из себя несущий (сварной, из стального проката, с антикоррозийным покрытием) эпоксидный композит, на который крепятся ограждающие конструкции типа "сэндвич". Толщина утеплителя зависит от климатических условий эксплуатации. 

Возможно изготовление в корпоративных цветах Заказчика, нанесение фирменного логотипа. Для обеспечения подачи стоков на установку очистки в блочно-модульном исполнении рекомендуем предусмотреть КНС (подбор КНС по дополнительному запросу).

Станция работает в круглосуточном, круглогодичном режиме, без постоянного присутствия обслуживающего персонала.

Изготовление и оснащение станции очистки «ТВЕРЬ-С» производится индивидуально под потребности заказчика! 

Применение

Станции «ТВЕРЬ-С» используются в условиях Крайнего Севера: в отдалённых населённых пунктах, вахтовых и полярных поселках, а также в военных частях. Очистные сооружения спроектированы для бесперебойной работы при экстремально низких температурах и ограниченном доступе обслуживающему персоналу. Конструкция отличается надежностью, автономностью и позволяет обеспечивать стабильную очистку сточных вод даже в самых суровых климатических условиях. 

Принцип работы

 Очистка сточных вод осуществляется в несколько этапов: 

  • МЕХАНИЧЕСКАЯ ОЧИСТКА.
  • БИОЛОГИЧЕСКАЯ ОЧИСТКА с процессами нитрификации-денитрификации, обеспечивающая удаление не только органических загрязнений, но и биогенных элементов (азота и фосфора). 
  • ГЛУБОКАЯ многоступенчатая БИОЛОГИЧЕСКАЯ ОЧИСТКА с использованием иммобилизующей загрузки.
  • ФИЛЬТРАЦИЯ, СОРБЦИЯ И ОБЕЗЗАРАЖИВАНИЕ.

Состав стадий может изменяться в зависимости от состава и концентрации загрязняющих веществ в поступающих сточных водах. 

Секции очистных сооружений:

  • 01 СОРОУЛАВЛИВАНИЕ

    Удаление из сточных вод крупного мусора, твердых бытовых отходов и плавающих включений. Данный этап защищает оборудование станции от повреждений и обеспечивает стабильную работу последующих процессов очистки.

  • 02 ПЕСКОУЛАВЛИВАНИЕ

    Удаление из сточных вод минеральных примесей, преимущественно песка. Данный этап снижает абразивное воздействие на оборудование и предотвращает заиливание последующих сооружений очистной системы.

  • 03 УСРЕДНЕНИЕ

    Обеспечение равномерной подачи сточных вод на очистные сооружения. Одновременно происходит выравнивание концентрации загрязняющих веществ, что повышает эффективность работы последующих стадий очистки.

  • 04 ПЕРВИЧНОЕ ОТСТАИВАНИЕ

    Выделение из сточных вод грубодисперсной нерастворимой взвеси в осадок и отделение эмульгированных веществ в виде пленки с последующим их удалением. Этот этап снижает нагрузку на биологические процессы и повышает общую эффективность очистки.

  • 05 АНАЭРОБНЫЕ ПРОЦЕССЫ

    Разложение трудноокисляемых органических соединений в бескислородной среде. На этом этапе сточные воды подготавливаются к последующему удалению фосфатов и более глубокой биологической очистке.

  • 06 ДЕНИТРИФИКАЦИЯ

    Удаление окисленных форм азота (нитритов и нитратов) за счет использования органических веществ. В процессе работы специальные микроорганизмы преобразуют соединения азота в безопасный молекулярный азот, снижая токсичность сточных вод.

  • 07 АЭРОБНЫЕ ПРОЦЕССЫ

    Окисление органических веществ до углекислого газа и воды. При оптимальных условиях на этом этапе также происходит биологическая дефосфотация, то есть удаление фосфатов из сточных вод.

  • 08 НИТРИФИКАЦИЯ

    Окисление аммонийного азота до нитритов и нитратов в присутствии кислорода. Этот этап обеспечивает глубокую биологическую очистку сточных вод и снижает их токсичность.

  • 09 ВТОРИЧНОЕ ОТСТАИВАНИЕ

    Отделение очищенной воды от биомассы активного ила, участвующего в процессе очистки. На этом этапе организуется возврат части иловой смеси для повторного окисления, что поддерживает стабильную работу биологической системы.

  • 10 ХИМИЧЕСКОЕ ВОЗДЕЙСТВИЕ

    Введение реагентов для осаждения остаточных растворенных примесей и фосфатов. На этом этапе формируется осадок, что обеспечивает дополнительную очистку сточных вод и доведение показателей до нормативных требований.

  • 11 ФИЛЬТРОВАНИЕ

    Доочистка сточных вод на зернистых фильтрующих загрузках от взвешенных частиц различного происхождения, включая улавливание хлопьев вынесенного ила. Этап обеспечивает достижение нормативов по содержанию взвешенных веществ (ниже 7–8 мг/л) и при необходимости позволяет удалять специфические загрязнения.

  • 12 СОРБЦИЯ

    Удаление специфических загрязняющих веществ, которые не поддаются биологической очистке. Применяется в случае их присутствия в сточных водах для достижения требуемых нормативов качества.

  • 13 ДЕЗИНФЕКЦИЯ

    Финальный этап очистки сточных вод перед их сбросом в водоем или повторным использованием. Облучение сточных вод ультрафиолетом определенного спектра, которое подавляет способность микроорганизмов к размножению и разрушение клеток патогенных микроорганизмов с помощью мощного окислителя, обеспечивающего надежную санитарную безопасность очищенной воды.

callback_form_img

Получить коммерческое предложение

Оставьте заявку и менеджер свяжется с вами в течение 15 минут

Нажимая на кнопку «Оставить звонок», вы даете согласие на обработку персональных данных

Статьи

Установки обеззараживания инфицированных сточных вод туберкулезных больниц и диспансеров
Установки обеззараживания инфицированных сточных вод туберкулезных больниц и диспансеров

ООО «Торговый Дом «ИНЖЕНЕРНОЕ ОБОРУДОВАНИЕ» изготавливает установки обеззараживания инфицированных сточных вод туберкулезных больниц и диспансеров, инфекционных отделений больниц и других аналогичных объектов.

16.02.2024

ТД "Инженерное оборудование": очистные сооружения и насосные станции для спортивных комплексов
ТД "Инженерное оборудование": очистные сооружения и насосные станции для спортивных комплексов

По статистике, доля россиян, занимающихся спортом в 2016 году существенно выросла и достигла уже 61%, соответственно, увеличилось количество различных государственных спортивных комплексов, секций, частных фитнес-клубов, также строятся новые крупные спортивные объекты.

16.02.2024

Очистка и перекачка стоков по высшему разряду
Очистка и перекачка стоков по высшему разряду

Уже четверть века на отечественном рынке очистных сооружений и насосных станций работает Торговый Дом «Инженерное оборудование». Руководство компании уверено: из года в год оставаться в числе лидеров отрасли организации помогают безупречная репутация, конкурентная цена, высокое качество продукции и, конечно, индивидуальный подход к реализации каждого проекта.

16.02.2024